AL MIJN WERK IS OPGENOMEN IN HET "STADSARCHIEF AMSTERDAM"

VIJZELSTRAAT 32 1017 HL AMSTERDAM

OPENINGSTIJDEN DI T/M VR 10 T/M 17.00 UUR

ZA EN ZO 12 T/M 17.00 UUR

TELEFOON: 020-2511511

------------------------------------------------------------------------------------------------------------------------------------------------------------------------------------------------------------

DE WERKEN ZIJN IN VOLGORDE VAN JAARTALLEN GESELECTEERD

-----------------------------------------------------------------------------------------------------------------------------------------------------------------------------------------------------------

SPEELBLOK VOOR MIJN ZOON ERWIN ZIJN 4E VERJAARDAG 1970

WOONHUIS: TE PUTTEN 1971

BETONNEN LICHTBLOK OPGENOMEN IN DE MBI WANDEN VOOR HET HUIS IN PUTTEN EN LUNTEREN

WOONHUIS: TE LUNTEREN 1972

 SCHOOL: DE RIETLANDEN OP MARKEN 1972

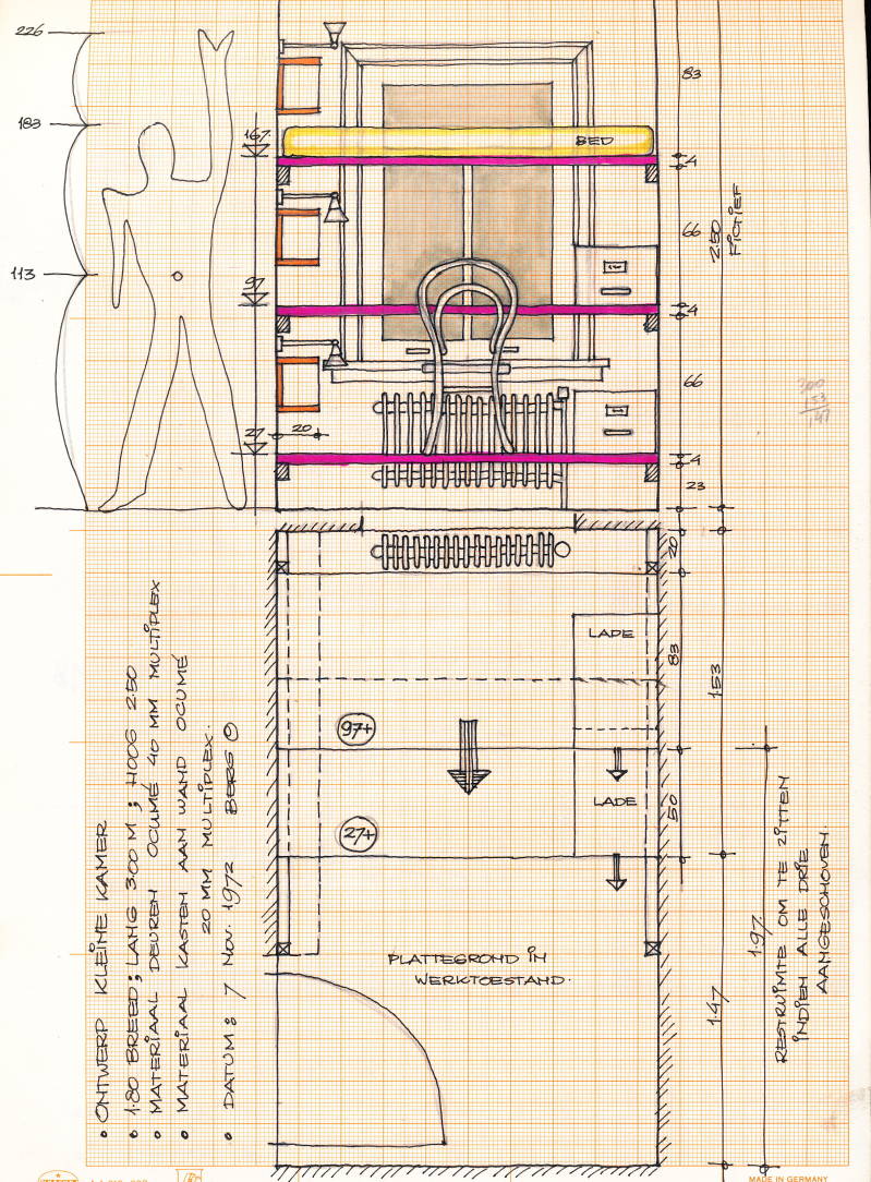
ONTWERP KLEINE KAMER EIGEN WOONHUIS 1972

WONINGVERBETERING: AMSTERDAM 1973

ONTWERP DEUR IN ZOMERHUIS EGMOND AAN DE HOEF 1973

INTERIEUR:  AMSTERDAM 1976

ONTWERP SPEELBLOK VOOR MIJN KINDEREN 1976

ONTWERP TAFEL VOOR EIGEN HUIS 1976

STUDIE EIGEN WOONHUIS 1977

RUIMTELIJK KUBUS ACADEMIE VAN BOUWKUNST 1978

ONTWERP GEVEL IN GASBETON ACADEMIE VAN BOUWKUNST 1978

VERBOUWING: WOONHUIS AMSTERDAM 1978

DECORS: VOOR TM JUNIOR TROPENMUSEUM AMSTERDAM 1978

THEMA: INDIANEN VAN LATIJNS AMERIKA

THEATER: DE MEERVAART AMSTERDAM 1978-1981-1983-1990-1991-1997

AFSTUDEREN ACADEMIE VAN BOUWKUNST 1979

VERBOUWING: MIME OPLEIDING THEATERSCHOOL AMSTERDAM 1979

VERBOUWING: KOFFIEHUIS GELDERSEKADE AMSTERDAM 1980-1989

VERBOUWING: AUDIO VISUELE DIENST THEATERSCHOOL AMSTERDAM 1980

VERBOUWING:  MODERNE DANS THEATERSCHOOL AMSTERDAM 1980-1983

VERBOUWING: JAN GEERKENSHUIS THEATERSCHOOL 1981

VERBOUWING: BINNENGASTHUIS SCAPINO DANSACADEMIE THEATERSCHOOL 1981

VERBOUWING: BIOSCOOP RIALTO RIVOLI AMSTERDAM 1981-1998

RENOVATIE: BEGIJNHOF AMSTERDAM 1981

VERBOUWING: MIME OPLEIDING THEATERSCHOOL AMSTERDAM 1982

VERBOUWING: NEL ROOS DANS ACADEMIE THEATERSCHOOL AMSTERDAM 1982

VERBOUWING: TONEELSCHOOL THEATERSCHOOL AMSTERDAM 1982

VERBOUWING: BOEKHANDEL VAN GENNEP NES AMSTERDAM 1983

VERBOUWING: DOCENT DRAMATISCHE VORMING THEATERSCHOOL AMSTERDAM 1983

VERBOUWING WOONHUIS AMSTERDAM VOOR TOM VAN DER POL 1984

VERBOUWING SCHOOL AMSTERDAM VOOR TOM VAN DER POL 1984

RENOVATIE: SPORTFONDSEN OOST AMSTERDAM 1984

VERBOUWING: ACADEMIE VAN KLEINKUNST THEATERSCHOOL AMSTERDAM 1984

VERBOUWING: CITYHOUSE INTERNATIONAL AMSTERDAM 1984

PRIJSVRAAG: SPORTHAL IN DIEMEN 1984

VERBOUWING: VAN GENNEP NIEUWEZIJDS AMSTERDAM 1985

VERBOUWING: WOONHUIS DUIVENDRECHT .....GLAZEN BALCONVLOER

HAALBAARHEIDSONDERZOEK: KONING & BIENFAIT THEATERSCHOOL 1985

PRIJSVRAAG: "HERINRICHTING FREDERIKSPLEIN" AMSTERDAM

MET FREEK RIEM 1986

VERBOUWING: CANON IMAGE CENTER AMSTERDAM 1986-1991

VERBOUWING: BARBAS MANNENMODE AMSTERDAM 1986

VERBOUWING LAKENHAL LEIDEN VOOR  BART VAN KASTEEL 1987

PRIJSVRAAG: "HERINRICHTING DOMPLEIN" UTRECHT MET FREEK RIEM 1988

VERBOUWING: THEATER DE KLEINE KOMEDIE AMSTERDAM 1988-1992

WATERPAVILJOEN ZEEWOLDE VOOR TEUN KOOLHAAS 1988

VERBOUWING: THEATER BELLEVUE AMSTERDAM 1989-1995

VERBOUWING: CAFE DE SMOESHAAN AMSTERDAM 1989-1998

PRIJSVRAAG: "MAANDERPLAS EDE" MET AREND BOUHUIS 1989

VERBOUWING: NIEUWE de la MAR THEATER AMSTERDAM 1989

VERBOUWING: THEATER DE ENGELENBAK AMSTERDAM 1990-1996

PRIJSVRAAG: THEATER HET PARK HOORN 1991

VERBOUWING: WOONHUIS AMSTERDAM 1991

VERBOUWING: WOONHUIS EINDHOVEN 1992

PRIJSVRAAG: GEBOUW AEMSTELLE AMSTELVEEN 1993

PRIJSVRAAG: HERBESTEMMING SILO RAAMBUURT DEVENTER 1996

VERBOUWING: CREMATORIUM WESTGAARDE AMSTERDAM 1996

HAALBAARHEIDS ONDERZOEK: THEATER DE UITSTEK ZWIJNDRECHT 1998

VERBOUWING: WOONHUIS S'GRAVELAND 1998

VERBOUWING: WOONHUIS AMSTELVEEN 2002

VERBOUWING: WOONHUIS AMSTERDAM 2008

EIGEN ATELIER / SCHUUR IN TUIN AMSTERDAM 2008

PRIJSVRAAG: MOTTO "NOORDSTAD 2040" SAMEN MET FREEK RIEM 2009

VERBOUWING: EXTRA VERDIEPING OUDE KARSELAAN AMSTELVEEN 2009

VERBOUWING: INDUSTRIEPAND BUSSUM 2010

CINEKID ZWANEN 3D WESTERPARK AMSTERDAM 2013

ORGANISEREN VAN LEZINGEN VOOR AetA ( Architectura et Amicitia )  2016

TENTOONSTELLING FACULTEIT BOUWKUNDE DELFT 2017

ORGANISEREN VAN LEZINGEN VOOR AetA ( Architectura et Amicitia )  2017

JAARLIJKS ORGANISEREN VAN FIETSTOCHTEN DOOR AMSTERDAM VANAF 1995

VERBOUWING: WOONHUIS  AMSTERDAM 2004 EN 2017

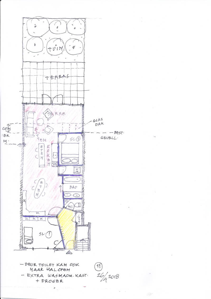
VERBOUWING: WOONHUIS AMSTERDAM 2017-2018

VERBOUWING: WOONHUIS AMSTERDAM 2018-2019

BEGIN NOVEMBER 2018 EEN OPDRACHT VOOR HET DECORATELIER VAN HET NATIONALE OPERA EN BALLET IN AMSTERDAM

----------------------------------------------------------------------------------------------------------------------------------------------------------------------------------------------------------

VERBOUWING: WOONHUIZEN DUIVENDRECHT 2018-2019

Maak jouw eigen website met JouwWeb